Bản vẽ kết cấu thép nhà xưởng đã không còn là khái niệm xa lạ trong việc xây dựng nhà xưởng, nhà kho, nhà công nghiệp, các công trình dân dụng. Việc sử dụng kết cấu thép mang lại nhiều lợi ích cho doanh nghiệp. Để đảm bảo mang lại công trình có được thiết kế đẹp và chắc chắn theo quy chuẩn thiết kế kết cấu thép cùng tham khảo quy trình thiết kế kết cấu thép nhà công nghiệp của Fujitruss nhé!
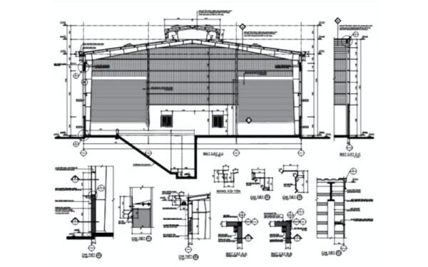
Bản vẽ kết cấu thép nhà xưởng
Bản vẽ kết cấu thép nhà xưởng đóng vai trò cực kỳ quan trọng trong việc xác định mục tiêu xây dựng, đảm bảo tính thẩm mỹ, công năng nhà xưởng. Đảm bảo được những yếu tố trong một doanh nghiệp sản xuất và nhà xưởng là tài sản quan trọng nhất. Chính vì vậy chủ doanh nghiệp luôn cần phải có bản vẽ thiết kế nhà xưởng trước khi đi vào thi công hay xây dựng dự án của mình.

Lợi ích của bản vẽ thiết kế nhà xưởng công nghiệp
Bản vẽ thiết kế mang lại hiệu quả trong việc rút ngắn thời gian thi công xây dựng nhà xưởng lắp ghép:
- Mang lại thẩm mỹ cao, đẹp mắt
- Đảm bảo kỹ thuật của công trình
- Chuyên nghiệp trong thi công và xây dựng dự án
- Tối ưu hóa công năng của dự án nhà xưởng công nghiệp
- Đảm bảo an toàn theo những tiêu chuẩn xây dựng
Các tiêu chuẩn thiết kế nhà xưởng
Phương án kết cấu tốt là phương án phải đảm bảo thỏa mãn đồng thời 2 điều kiện:
- Đảm bảo khả năng chịu lực: Cường độ
- Đảm bảo yêu cầu sử dụng: Chuyển vị cho phép.
Một số tiêu chuẩn thiết kế kết cấu thép hiện nay
Trong quy trình thiết kế kết cấu thép nhà công nghiệp phải chúng ta cùng tham khảo những tiêu chuẩn thiết kế kết cấu thép hiện nay nhé .
| Việt nam | TCVN 5575:2012: Kết cấu thép – Tiêu chuẩn thiết kế. |
| Mỹ | AISC-89: American Institute Of Steel Construction, Inc – Viện nghiên cứu thép xây dựng của Hoa kỳ. |
| Anh | BS 5950: Part 1: 1990: British Standard: Structure use of Steelwork in Building: Tiêu chuẩn Anh quốc. |
| Châu âu | EN1993-1-1: Tiêu chuẩn Chân âu – Thiết kế kết cấu thép. |
| Úc | AS 4100-1998: Tiêu chuẩn Úc về Kết cấu thép; AS 4600:1996: Australia/New Zealand Standard: Kết cấu thép cán nguội. |
Tiêu chuẩn tải trọng thiết kế tương ứng với các nước
| Việt nam | TCVN 2737:1995: Tải trọng và tác động, tiêu chuẩn thiết kế. |
| Mỹ | MBMA 2002; UBC 97; IBC 2006; |
| Anh | BS 6399: Part 2: 1997: Load for Building: Part 2: Code of practice for wind loads; BS 6399: Part1: 1984: Design loading for buildings: Part 1: Code of practice for dead and Imposed loads. |
| Châu âu | EN1991-1-4:2005+A1: Action on structure. |
| Úc | AS/NZS 1170.1:2002: Tiêu chuẩn Úc/New Zealand về tải trọng tĩnh tải, hoạt tải và tác động khác; AS/NZS 1170.2:2011: Tiêu chuẩn Úc/New Zealand về tải trọng gió. |
Quy trình thiết kế kết cấu thép nhẹ nhà xưởng
Quy trình thiết kế kết cấu thép nhà công nghiệp của đội kỹ sư Fujitruss có các bước như sau:
Xác định yêu cầu đề ra, khoanh vùng tiêu chuẩn sử dụng
Người kỹ sư trước khi thực hiện sẽ đưa ra khái quát về loại công trình cần thiết kế. Từ đó, lên ý tưởng thiết kế kết cấu theo những yêu cầu, điều kiện cụ thể.
Lập sơ đồ kết cấu, sơ bộ tiết diện và lựa chọn vật liệu
Lựa chọn phương án thi công phù hợp với từng loại công trình, trên từng địa hình thực tế. Sau đó bắt đầu tiến hành lập sơ đồ kết cấu. Đây chính là căn cứ để bạn đưa ra những tính toán về tải trọng, vật liệu xây dựng chủ yếu là vật liệu nhẹ : thanh xà gồ C, thanh lito, tôn, panel…
Người kỹ sư tiến hành chọn kích thước sơ bộ các tiết diện theo sơ đồ kết cấu. Từ đó, đưa ra phương án lựa chọn các vật liệu xây dựng phù hợp cho công trình, theo tiêu chuẩn thiết kế kết cấu thép hiện hành.
Tính toán tải trọng và gán tải
Có thể thấy đây là bước khá quan trọng trong toàn bộ quy trình thiết kế nhà xưởng, nhà kho hay nhà công nghiệp khung kết cấu. Đòi hỏi người kỹ sư phải có nhiều kinh nghiệm thực tế. Đưa ra những tính toán, dự kiến về các tác động bên ngoài vào công trình. Việc sai sót ở bước này sẽ khiến chất lượng công trình bị giảm sút, nguy hiểm hơn là có thể khiến công trình bị sụt đổ.
- Tải trọng công trình gồm một số tải trọng:
- Tải bản thân: cột, dầm, sàn
- Tĩnh tải: Tải hoàn thiện sàn, tải trần, tải tường
- Hoạt tải sử dụng: Lấy theo chức năng sử dụng của sàn đó
- Tải cầu trục
- Tải trọng gió
- Tổ hợp tải trọng: Tổ hợp các tải trọng bên trên theo từng trường hợp khác nhau mục đích tìm ra tổ hợp tải trọng nguy hiểm nhất cho hệ kết cấu
- Xác định nội lực để tính toán tiết diện
- Tính toán tiết diện và kiểm tra chuyển vị
Tiến hành tính toán chi tiết các tiết diện của công trình. Đi kèm với đó là kiểm tra các điều kiện sử dụng có đảm bảo cho chất lượng của thiết kế.
Thiết kế chi tiết liên kết
Liên kết là 1 phần tuy nhỏ nhưng có vai trò đặc biệt quan trọng trong bản vẽ kết cấu thép nhà xưởng. Bằng việc tính toán lựa chọn phương án liên kết như bulong, đường hàn hay đinh tán mà các cấu kiện được liên kết với nhau thành hệ chịu lực đảm bảo yêu cầu thiết kế.
Thể hiện bản vẽ 3D
Để giúp khách hàng và thợ thi công dễ dàng hình dung ra nhà xưởng thực tế thì các kỹ sư Fujitruss sẽ thể hiện bản vẽ 3D bằng công cụ:

- Thiết kế kết cấu thép bằng Sap2000, Etabs
- Thể hiện bản vẽ phương án bằng phần mềm Cad
Tìm đơn vị thiết kế nhà xưởng vật liệu nhẹ như thế nào?
Để tìm được một đơn vị thiết kế nhà xưởng uy tín, cần xác định độ tin cậy của đơn vị trong lĩnh vực tại địa phương để đảm bảo về khả năng trao đổi thông tin thuận tiện.

Đơn vị thiết kế và thi công nhà xưởng phải sử dụng những trang thiết bị hiện đại sử dụng trong công tác thiết kế cùng các phần mềm tiên tiến chuyên dụng trong thiết kế nhà xưởng; các dự án mà công ty đã thực hiện để đảm bảo uy tín, và độ tin cậy.
Có thể nói Fujitruss chính là địa chỉ thiết kế bản vẽ kết cấu thép nhà xưởng vật liệu nhẹ tốt nhất mà bạn đang tìm.
Đơn vị thiết kế khung nhà xưởng lắp ghép uy tín
Tự hào là đơn vị hàng đầu trong lĩnh vực khung kèo thép nhẹ trên thị trường. Fujitruss cam kết đem đến cho quý khách hàng dịch vụ trọn gói về tư vấn, thiết kế khung kèo thép nhẹ nhà xưởng chuyên nghiệp.
+ Với đội ngũ nhân viên tư vấn kinh nghiệm, lành nghề. Khách hàng sẽ được cung cấp và giải đáp đầy đủ những thông tin xoay quanh lĩnh vực xây dựng khung kèo thép.
+ Với một tập thể phát triển đồng nhất từ nhân viên tư vấn đến kỹ sư thiết kế. Đặc biệt hệ thống phần mềm tiên tiến và mới nhất hiện nay. Chúng tôi cam kết đem đến cho khách hàng những bản thiết kế khung kèo thép nhẹ độc đáo nhất. Đáp ứng tất cả nhu cầu và sở thích của bạn. Nhằm tạo nên công trình mang đậm phong cách của riêng bạn
Tham khảo : quy trình thi công nhà xưởng lắp ghép vật liệu nhẹ tại Fujitruss.
+ Ngoài ra, chúng tôi có một hệ thống nhân viên chuyên nghiệp năng động luôn cập nhật những phong cách mới và bắt kịp thời đại nhất. Nên bạn có thể hoàn toàn yên tâm rằng về công trình của bạn sẽ là mới nhất, độc nhất và thời thượng nhất.
Chi tiết liên hệ : 033.747.6668
