Nhà tiền chế cấp 4 đang khá được ưa chuộng nhờ vào kết cấu đơn giản và phù hợp với nhiều đối tượng có vốn ít. Thế nhưng nó không thua kém gì đối với những nhà truyền thống thông thường. Những mẫu nhà lắp ghép cấp 4 này cũng có nhiều bản thiết kế vô cùng tinh tế và đẹp. Nhưng để có những mẫu nhà đẹp trước khi thi công thì chúng ta cần phải nắm được bản vẽ nhà tiền chế cấp 4.

Đặc điểm nhà tiền chế cấp 4
Nhà tiền chế cấp 4 là kiểu nhà dần dụng 1 tầng. Đây là loại nhà được làm bằng các kiện thép và được lắp đặt chế tạo theo bản vẽ nhà tiền chế cấp 4. Quá trình thực hiện hoàn thiện bản vẽ được chia làm 3 giai đoạn: Thiết kế, gia công cấu kiện và lắp đặt công trình
Trước khi các khung nhà lắp ghép, cấu kiện sẽ được sản xuất tại xưởng theo mẫu yêu cầu. Thì bạn cần phải lên ý tưởng, thiết kế bản vẽ nhà tiền chế cấp 4 trước. Bản vẽ bao gồm:
+ Cấu tạo móng nhà: Móng nhà là thứ vô cùng thiết yếu và quan trọng nhất để có thể xây được một ngôi nhà. Móng được tạo từ bê tông cốt thép giúp cho ngôi nhà được vững chắc. Giúp cho ngôi nhà bị nghiêng bật gốc khỏi mặt đất do thời tiết như mưa, gió, bão,…
+ Các bu lông móng: Đây là cấu kiện thường được bảo quản rất kỹ. Cũng là cấu kiện rất quan trọng tạo nên sự vững chắc cho ngôi nhà. Mỗi móng nhà để sẽ có bu lông riêng biệt dành cho nó
Ngoài móng và bu lông thì cấu hình khung cho bản thiết kế bản vẽ nhà tiền chế cấp 4 cũng cần được lưu ý. Khung của ngôi nhà chủ yếu được làm bằng thép. Các bộ phận như đòn tay, dầm sẽ được làm bằng khung thép. Để tạo nên độ vững chắc cho ngôi nhà.
Các cột hình thành khung thường có hình chữ H hoặc cột trụ tròn giúp có thể tạo cho ngôi nhà chịu được áp lực lớn từ trên xuống dưới.
Dầm của khung thường là hình chữ L, xà gồ là loại thép hình chữ C, Z, U được tùy chỉnh sao cho nó phù hợp với chiều cao cũng như chiều rộng của xà gồ. Khung thép nhà cấp 4 thường sẽ có độ dốc từ 5% đến 15%

+ Ngoài những kết cấu chính như trên thì bản vẽ cũng không thể nào thiếu đi những kết cấu phụ như: Mái nhà các cửu thông gió, cửa trời, hệ thống tường vây bao quanh
+ Các thông số vô cùng căn bản để có thể xác định một mẫu thiết kế nhà thép tiền chế cấp 4 bao gồm:
- Chiều rộng của nhà thép tiền chế cấp 4 được tính từ mép ngoài tường 2 bên
- Chiều dài cũng được tính từ mép tường đến cuối
- Chiều cao của nhà được tính từ gốc của trụ thép tới đỉnh mái. Chiều cao của nhà tiền chế cấp 4 sẽ do chủ nhà quyết định
- Cột: Khoảng cách giữa những cột sẽ phụ thuộc vào chiều dài của nhà
- Tải trọng của khu công trình bao gồm có: khối lượng của mái, cầu trục, sàn
Trước khi thiết kế bản vẽ tiền chế nhà cấp 4 thì các bạn nên ý tưởng thật chi tiết. Điều này sẽ này giúp cho bạn tiết kiệm không ít những chi phí và thời gian
Vì sao phải thiết kế nhà tiền chế cấp 4
Trước khi thi công nhà lắp ghép cấp 4 thì chúng ta cần phải có bản vẽ. Vậy tại sao trước khi thi công thì cần phải có nhà cấp 4. Thì dưới đây là một số lý do:
+ Thời gian thi công ngắn lại có thể mang vào sử dụng nhanh. Đây là mẫu nhà có thời gian thi công nhanh nhất trong tất cả các công trình khác. Nếu như bạn đang có ý định, nhu cầu để có thể sở hữu một ngôi nhà trong khoảng thời gian ngắn thì đây sẽ là một trong những sự lựa chọn bạn không nên bỏ qua
+ Việc thiết kế trước khi thi công sẽ giúp gia chủ tiết kiệm được đáng kể chi phí và mức giá nhà lắp ghép cấp 4. Xây dựng nhà cấp 4 vô cùng đơn giản và không tốn nhiều nguyên liệu. Chỉ cần có vài trăm triệu là bạn đã có thể sở hữu của một ngôi nhà cấp 4 hoàn hảo đáp ứng được mọi nhu cầu sử dụng.
+ Kết cấu bản vẽ và cách làm nhà lắp ghép tiền chế cấp 4 hiện đại, sang trọng, tính thẩm mỹ cao. Bạn có thể thỏa sức nghiên cứu thiết kế ngôi nhà của bạn theo ý thích, trí tưởng tượng của bạn.
Một số bản vẽ nhà tiền cấp 4
Như chúng ta đã biết bản vẽ nhà tiền chế cấp 4 sẽ rất quan trọng khi thi công nhà lắp ghép. Bởi nó mang đến nhiều ưu điểm trong quá trình thi công. Dưới đây là một số mẫu bản vẽ nhà tiền chế cấp 4 hay xây dựng:
Mẫu bản vẽ nhà thép tiền chế mái tôn
Nhà tiền chế cấp 4 mái tôn là mẫu nhà đang thường được sử dụng trong các công trình nhà ở, xưởng,… Nó được thiết kế khung nhà bằng thép kết hợp với mái tôn giúp làm giảm tác động lên móng nhà. Giúp cho căn nhà được trở lên vững chắc hơn

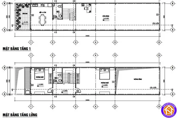
Bản vẽ nhà lắp ghép cấp 4 gác lửng
Nhà lắp ghép cấp 4 gác lửng cũng là một trong những mẫu nhà tiền chế được ưa chuộng hiện nay. Mẫu nhà này có thêm 1 gác lửng ở phí bên trên. Giúp tăng thêm diện tích cho ngôi nhà
>> Tham khảo ngay: Các mẫu nhà lắp ghép cấp 4 gác lửng đẹp
Mẫu bản vẽ nhà tiền chế cấp 4 có hiên nhà rộng
Nếu như mà bạn yêu thích cuộc một cuộc sống thu vị và mỗi sáng có thể nhâm nhi một tách trà. Hay muốn ngồi để có thể ngắm sao trời vào buổi tối. Thì chúng ta không thể nào có thể bỏ qua mẫu nhà tiền chế có hiên nhà rộng này.

Phần hiên nhô ra phía ngoài này giúp chúng ta có không gian thư giãn hoàn hảo. Cũng như trở thành một không gian lý tưởng để có thể vui chơi cho trẻ
Trên đây là một số bản vẽ nhà tiền chế cấp 4 hay được xây dựng. Rất mong những thông tin đó sẽ đem lại hữu ích cho các bạn. Giúp các bạn có thể thiết kế được cho mình một ngôi nhà cấp 4 ưng ý nhất có thể
